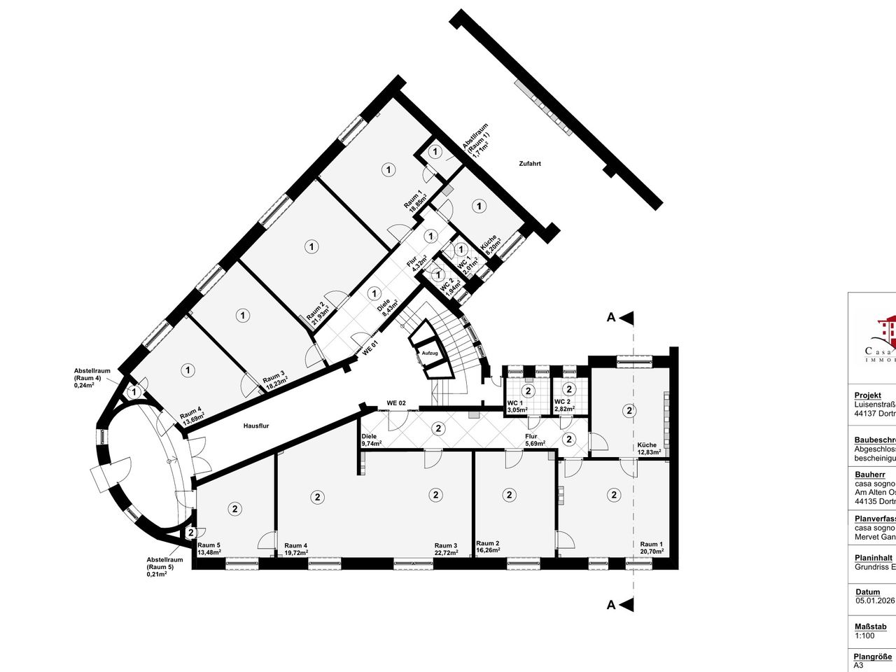
Im Herzen des Dortmunder Klinikviertels erhebt sich dieses eindrucksvolle, denkmalgeschützte Wohnhaus aus dem Jahr 1910/11, entworfen vom Architekten R. Kleffmann und errichtet durch den Baumeister F. Meyer. Die kunstvolle Fassade im Stil des Neubarock mit der markanten, halbrunden Ecke zwischen Luisenstraße und Poststraße verleiht dem Gebäude seinen unverwechselbaren Charakter und prägt das Straßenbild weit über das Grundstück hinaus.
2025 wurde die Fassade aufwendig restauriert – inklusive der Holzfenster – und so der historische Charme mit modernem Komfort vereint. Ein Personenaufzug, Balkone, eine Zentralheizung (Baujahr 2014) mit optionalem Fernwärmeanschluss sowie zwei PKW-Stellplätze im Innenhof runden das Angebot ab. Aufgeteilt in 11 großzügige Wohneinheiten mit Flächen zwischen ca. 97 und 180 m² bietet das Haus ein exklusives Wohnambiente in bester Innenstadtlage.
