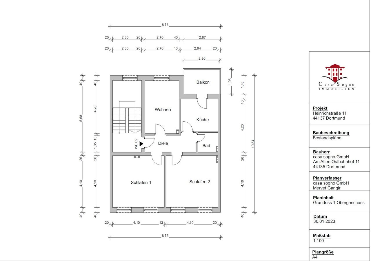
Die angebotene 3-Zimmerwohnung befindet sich in einem ruhigen, hübschen 4-Parteienhaus im westlich gelegenen Unionviertel und umfasst eine Wohnfläche von ca. 65m² verteilt auf drei Räume.
Der gründerzeitliche Ausdruck der Liegenschaft aus 1915 blieb durch originale Jugendstilornamente erfreulicherweise erhalten und prägt das ausschweifende Fassadenbild - solche Häuser betritt man gern.
Das Innenleben zeichnet sich durch einen praktischen, einladenden Grundriss aus und führt sie durch ein helles und großzügiges Treppenhaus mit nur jeweils einer Wohnung pro Etage. Das angenehme Wohngefühl ist hier inbegriffen und wird durch einen nach Westen
ausgerichteten, nahezu uneinsehbaren Balkon von rd. 5,5m² abgerundet. Den städtischen Trubel können Sie hier, in Ihrem zentralen, lichtdurchfluteten Refugium hinter sich lassen.
Die Wohneinheit ist seit 2024 vermietet und bietet mit einer jährlichen Kaltmieteinnahme von 7.800,00 € ein stabile Grundlage für Kapitalanleger.
Die Wohnung befindet sich in einem renovierten Zustand und kann nach Rücksprache gern besichtigt werden.
Melden Sie sich bei Interesse gern. Wir freuen uns auf Ihre Kontaktanfrage.
